2D-планы, 3D-модели, фотоотчеты для дизайна, мебели и кадастра
Гарантируем высокую точность измерений
Выполняем замеры в течение 24 часов
Работаем с объектами любой сложности
PDF, DWG, 3D - все необходимые форматы
Более 10 лет на рынке измерений
Гарантируем точность всех измерений
Полный спектр услуг по замерам помещений
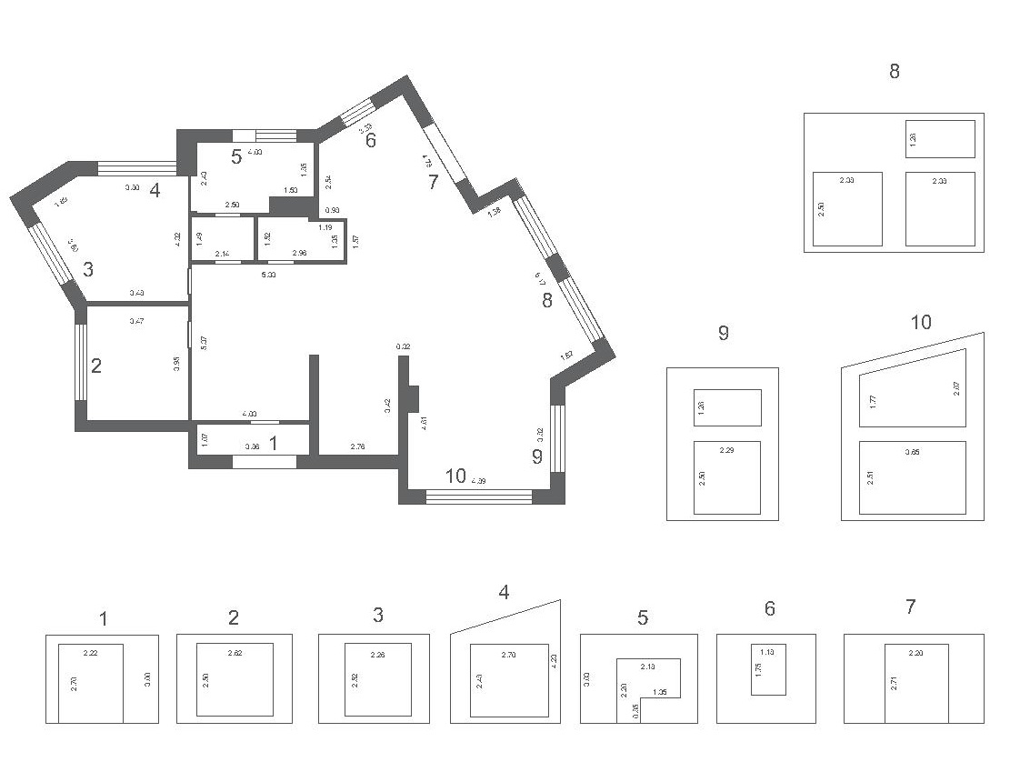
Точные планы помещений с размерами, высотами и привязкой инженерных сетей. Форматы: PDF, DWG, JPG.
ПодробнееСоздание трехмерных моделей помещений с облаком точек. Точность ±2 мм. Форматы: OBJ, 3DS, RCP.
ПодробнееДетальная фотофиксация помещений: стандартный отчет, панорамы 360°, видео-обход.
ПодробнееТочные планы для разработки дизайн-проектов и визуализации
Детальные замеры для производства мебели на заказ
Точные данные для кадастрового учета и технических паспортов
Замеры для ремонта, перепланировки и оформления документов
Площадь: 85 м²
Тип: Комплексный замер
Площадь: 120 м²
Тип: 3D-сканирование
Площадь: 200 м²
Тип: Фотофиксация
Площадь: 45 м²
Тип: 2D-замеры
Дизайн интерьера
"Очень довольна работой! Замеры выполнены точно и быстро. Планы получились детальные, все размеры совпали. Рекомендую!"
Мебельная компания
"Работаем с этой компанией уже 3 года. Всегда точные замеры, соблюдение сроков. 3D-модели помогают избежать ошибок при производстве."
Частный заказчик
"Заказывала замеры для перепланировки. Специалист приехал вовремя, все аккуратно измерил. Документы получила быстро, все приняли в БТИ."
Получите скидку 10% на первый заказ